Description
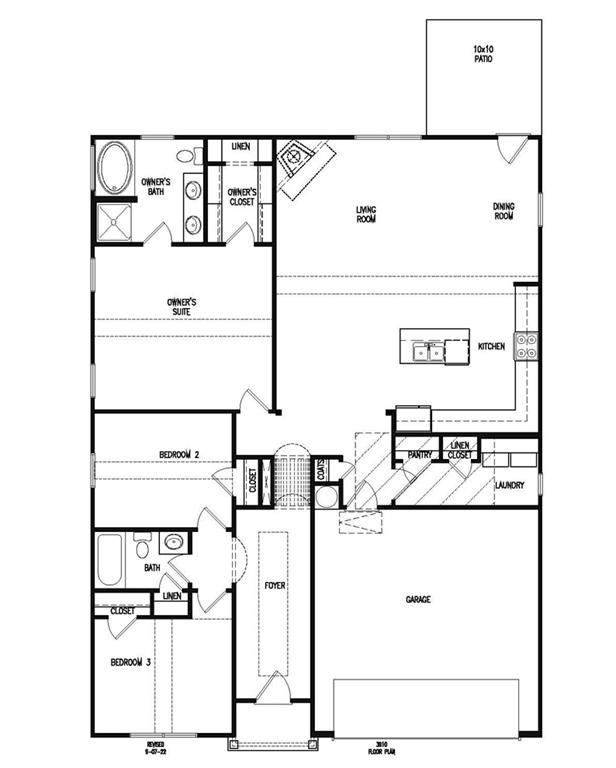
Lot 126 - USDA eligible! Plan 3910 showcases a beautiful Craftsman-style exterior with a front elevation featuring brick, Hardiplank, and board-and-batten accents. This single-story home offers 3 bedrooms, 2 bathrooms, a 2-car garage, smooth ceilings throughout, and 9' first-floor ceilings. Enjoy convenient one-level living with a spacious family room with a cozy fireplace, a dining area, and a large kitchen equipped with granite countertops, a kitchen island, and stainless-steel appliances. The generous primary suite features a dual-sink vanity, garden tub, separate shower, and a large walk-in closet. Two additional large bedrooms and a full bath complete the main floor. The builder is offering added features at no extra cost to the buyer: blinds, window screens, a glass shower door in the owner's suite, and a garage door opener. Home is now under construction and is 60 days to completion! Interior home pictures are example of home to be built.
-
3BEDS
-
0.25ACRES
-
2BATHS
-
01/2 BATHS
School Information
Description
Lot 126 - USDA eligible! Plan 3910 showcases a beautiful Craftsman-style exterior with a front elevation featuring brick, Hardiplank, and board-and-batten accents. This single-story home offers 3 bedrooms, 2 bathrooms, a 2-car garage, smooth ceilings throughout, and 9' first-floor ceilings. Enjoy convenient one-level living with a spacious family room with a cozy fireplace, a dining area, and a large kitchen equipped with granite countertops, a kitchen island, and stainless-steel appliances. The generous primary suite features a dual-sink vanity, garden tub, separate shower, and a large walk-in closet. Two additional large bedrooms and a full bath complete the main floor. The builder is offering added features at no extra cost to the buyer: blinds, window screens, a glass shower door in the owner's suite, and a garage door opener. Home is now under construction and is 60 days to completion! Interior home pictures are example of home to be built.
Listings identified with the FMLS IDX logo come from FMLS, are held by brokerage firms other than the owner of this website and the listing brokerage is identified in any listing details. Information is deemed reliable but is not guaranteed.
If you believe any FMLS listing contains material that infringes your copyrighted work, please click here to review our DMCA policy and learn how to submit a takedown request.
© 2026 First Multiple Listing Service, Inc. Data last updated 2026-04-22T00:04:08.897. For issues regarding this website, please contact BoomTown.
